Hi John,
Last week we launched our crowdfunder to fund the investigation into Tommy Robinson’s sham bankruptcy. Since then over 6,700 HOPE not hate supporters have joined the campaign and our investigation is continuing at pace.
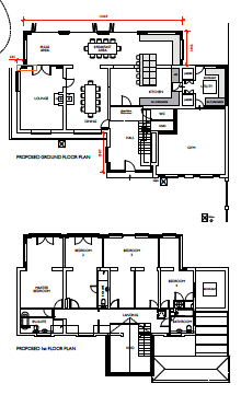
So far HOPE not hate has uncovered assets totalling as much as £3 million in property and businesses linked to Robinson, including an enormous house in Bedfordshire. You can read more about this house in our latest Tommy Robinson blog post, which details his plans for a large home gym, a games room and a two-door garage to house his numerous expensive vehicles - check out the plans below!

The more money we crowdfund, the more resources we have to build the case against Robinson and make sure he’s held to account. It’s not too late to chip in and join the campaign if you can - for the next 24 hours donations will be matched by a generous donor up to £10,000, so your donation will be doubled.
The commitment of our movement when we’re united against hate never ceases to impress and inspire me. Thank you for everything you do.
Nick
Nick Lowles
CEO, HOPE not hate